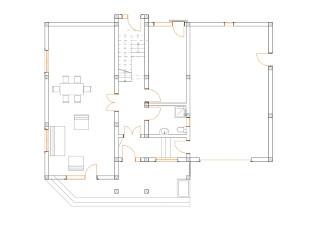
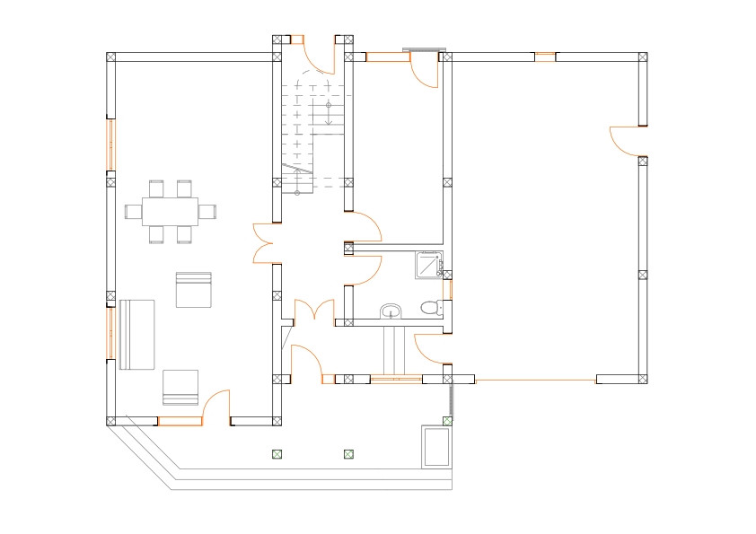
Idejno rešenje: Stambeni prostor
Lokacija: Mudrakovac, Kruševac
Površina: 295m2
Napomena: Kliknite na sliku za uvećanje
Ukoliko planirate da projektujete, pravite ili adaptirate objekat, kontaktirajte nas.
U veoma kratkom roku dobićete odgovor sa najadekvatnijom ponudom od strane našeg stručnog tima.
Za sve ostale informacije ili konsultacije pišite nam putem kontakt forme na sajtu ili nas pozovite.
Rado ćemo vam izaći u susret.
